A living room, kitchen, bathroom with all the trimmings, bedroom, sauna, sun terrace — all on the water. For many years, this was the houseboat manufacturer's big dream.
Skipper Heinz-Dieter aboard his “unaone”.
The idea for houseboat Has matured for a long time, at some point the time had come: The trained electrician and electrical engineer and his wife developed the design for their personal houseboat Ready and have a prototype built.
In 2015, the maiden voyage finally took place — the dream was realized!
Because they were asked so often about their beautiful boat, the two are now also fulfilling the dream of owning their own houseboat. On average, such a boat is ten to twelve meters long, four to five meters wide and weighs around six to seven tons. The houseboat then travels at twelve km/h — a perfect speed for relaxed travel.
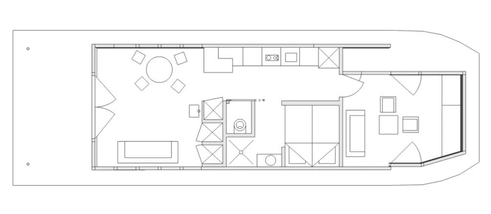
Length: 15 m
Width: 5 m
Depth approx. 0.6 m
Driving height: 4 m
Hull material: steel 5 mm
Construction: steel frame construction
Glass panels: double glazing safety glass
Closed: Wood-clad surfaces
Living space in the house approx. 48 m²Alcove: approx. 9 m²
Terrace: 12 m²
roof terrace: 40 m²
Type of heating: floor heating
Heat source: oil heater
Water heating: via oil heating
Fresh water tank: 500 l
Water treatment: optionally
Waste water tank: 500 l
Wastewater treatment plant: optional
Engine: Inboard diesel 2×100 hp
Tank system: from 200l by shipping area
Electric crossthrusters: front and aft
steering position
bathroom with washbasin, shower
toilet with flush toilet
kitchenette with fridge and stove
double bed 2m x 2m
solar panel
sauna in the bath
Oil stove with viewing window in the living room
Floor plan can still be freely designed
In the past, houseboat financing was difficult because, in contrast to construction financing, it did not offer a land register entry as collateral. However, the situation has improved steadily in recent years, not least due to growing demand. Through our partner comparison portal, you can now discover suitable offers at attractive conditions.
Compare nowWe advise you on the entire process of buying or renting a houseboat.
Hausboot-Kompass-Krenke UG (limited liability)
Borsigstraße 29
10115 Berlin








